Ada Compliant Shower

Model Lcs6333a75b Ada Compliant Roll In Shower Ada Shower Roll In Showers Best Bath

Model Lcs6333a75b Ada Compliant Roll In Shower Ada Shower Roll In Showers Best Bath

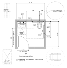
Ada Measurement Requirements 2015 Bathroom Ada Shower Shower Valve Shower

Ada Measurement Requirements 2015 Bathroom Ada Shower Shower Valve Shower

Les6333a75b One Piece 63 X 34 Ada Compliant Roll In Shower Barrier Free Roll In Showers Fiberglass Shower Shower Grab Bar

Les6333a75b One Piece 63 X 34 Ada Compliant Roll In Shower Barrier Free Roll In Showers Fiberglass Shower Shower Grab Bar

Walk In Shower Surrounds For Home Remodels And Facilities Best Bath Systems Bathroom Design Accessible Shower Bathroom Design Photo

Walk In Shower Surrounds For Home Remodels And Facilities Best Bath Systems Bathroom Design Accessible Shower Bathroom Design Photo

How To Save Space In Ada Compliant Bathroom Design From Bradley Corporation Usa Bathroom Design Ada Bathroom Handicap Bathroom Design

How To Save Space In Ada Compliant Bathroom Design From Bradley Corporation Usa Bathroom Design Ada Bathroom Handicap Bathroom Design

Freedom Ada Showers Handicapped Accessible Showers Wheelchair Roll In Shower Accessible Shower Universal Design Bathroom Shower Wheelchair

Freedom Ada Showers Handicapped Accessible Showers Wheelchair Roll In Shower Accessible Shower Universal Design Bathroom Shower Wheelchair

Freedom Ada Showers Handicapped Accessible Showers Wheelchair Roll In Shower Accessible Shower Universal Design Bathroom Shower Wheelchair

Commercial and public buildings in the usa need to meet the ada standards and guidelines for accessibility.

Ada compliant shower. Ada compliant showers are handicapped accessible for wheelchairs and people of all abilities. View our ada compliant shower ramp add on for select endurant shower. Browse ada compliant shower seats by endurant.

Aquatic accessible acrylx 60 in. Aquatic accessible acrylx 60 in. 1 piece ada shower stall w left seat and grab bars in white 2 311 00.

Ada compliant showers can be delivered to the job site fully accessorized to meet adaag guidelines folding shower bench with legs or without legs grab bars shower accessories etc barrier free threshold. 1 piece ada shower stall w left seat and grab bars in white 2 311 00. What is an ada compliant shower.

5 Piece Ada Compliant Shower With Eight Inch Tile And Full Accessories Accessible Accessibility Ada Shower Fiberglass Shower Ada Bathroom

5 Piece Ada Compliant Shower With Eight Inch Tile And Full Accessories Accessible Accessibility Ada Shower Fiberglass Shower Ada Bathroom

A Freedom Transfer Shower Is Ada Compliant Order This Shower For Your Commercial Or Residential Applications Accessor Ada Shower Ada Compliant Shower Inserts

A Freedom Transfer Shower Is Ada Compliant Order This Shower For Your Commercial Or Residential Applications Accessor Ada Shower Ada Compliant Shower Inserts

Contact Us Diy Plumbing Accessible Shower Plumbing

Contact Us Diy Plumbing Accessible Shower Plumbing

Ada Compliant Bathroom Grab Bars Rustic Industrial Steel Etsy Grab Bars In Bathroom Ada Bathroom Grab Bars

Ada Compliant Bathroom Grab Bars Rustic Industrial Steel Etsy Grab Bars In Bathroom Ada Bathroom Grab Bars

Ada Roll In Shower Ada Shower Shower Ada Bathroom

Ada Roll In Shower Ada Shower Shower Ada Bathroom

Ada Compliant Shower Shower Units Ada Shower Accessible Shower

Ada Compliant Shower Shower Units Ada Shower Accessible Shower

Source : pinterest.com